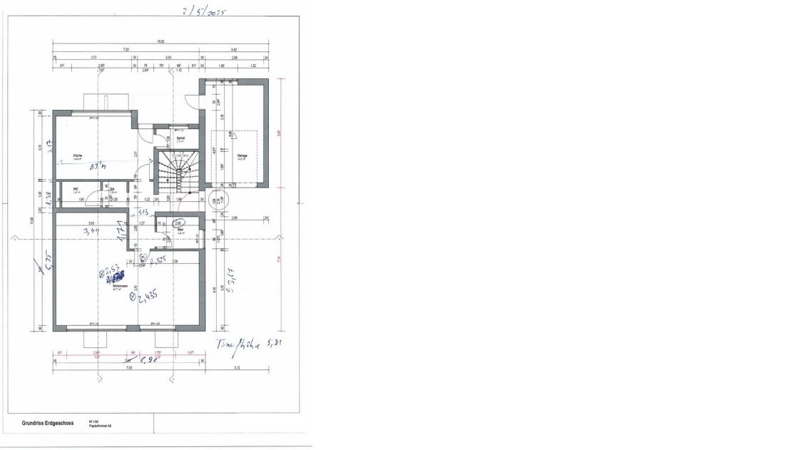
Projekt 25025 Umbau EFH Aachen (D)
Home
Références
Animations 3D
Partenaires
Kontakt
Dictionaire - DE-EN-FR
AIXINEERING SARL
GÉRANT: Dipl. Ing. Jan Wisniewski
Königin Astrid Str. 18
B - 4710 Herbesthal
Tel.: +49 160 9 1976 3 11
Fax: +32 87 656058
E-Mail: info@aixineering.be